Обяви 0 За нас Контакти
Продава КЪЩА
град София, Сеславци
345 000 €
674 761.35 лв.

(1 917 €, 3 749.33 лв./m2)
Цената е с включено ДДС
История на цената
Публикувана в 18:18 на 28 октомври, 2025 год.
Обявата е посетена 2461 пъти.
Площ:
180 m2
Двор:
382 m2
Газ:
НЕ
ТEЦ:
НЕ
Строителство:
Тухла,

Описание на имота:


Референтен номер: SOF-135289

Представяме нова къща в комплекс от осем самостоятелни къщи в кв. 'Сеславци', гр. София.
Проектът включва изграждането на модерни, уютни и енергийно ефективни самостоятелни къщи в кв. 'Сеславци', разположен в североизточната част на София. Този район е известен със своята красива природа, чист въздух и спокойна атмосфера, което го прави идеалното място за бягство от градската среда.

Основни характеристики:
Тип имоти: самостоятелни къщи с три спални;
Брой къщи: 8;
Площ на парцелите: oт 340 до 570 кв.м;
Застроена площ на къщите: oт 180 до 258 кв.м.

Разпределение на къщи от 3 до 8 включително:

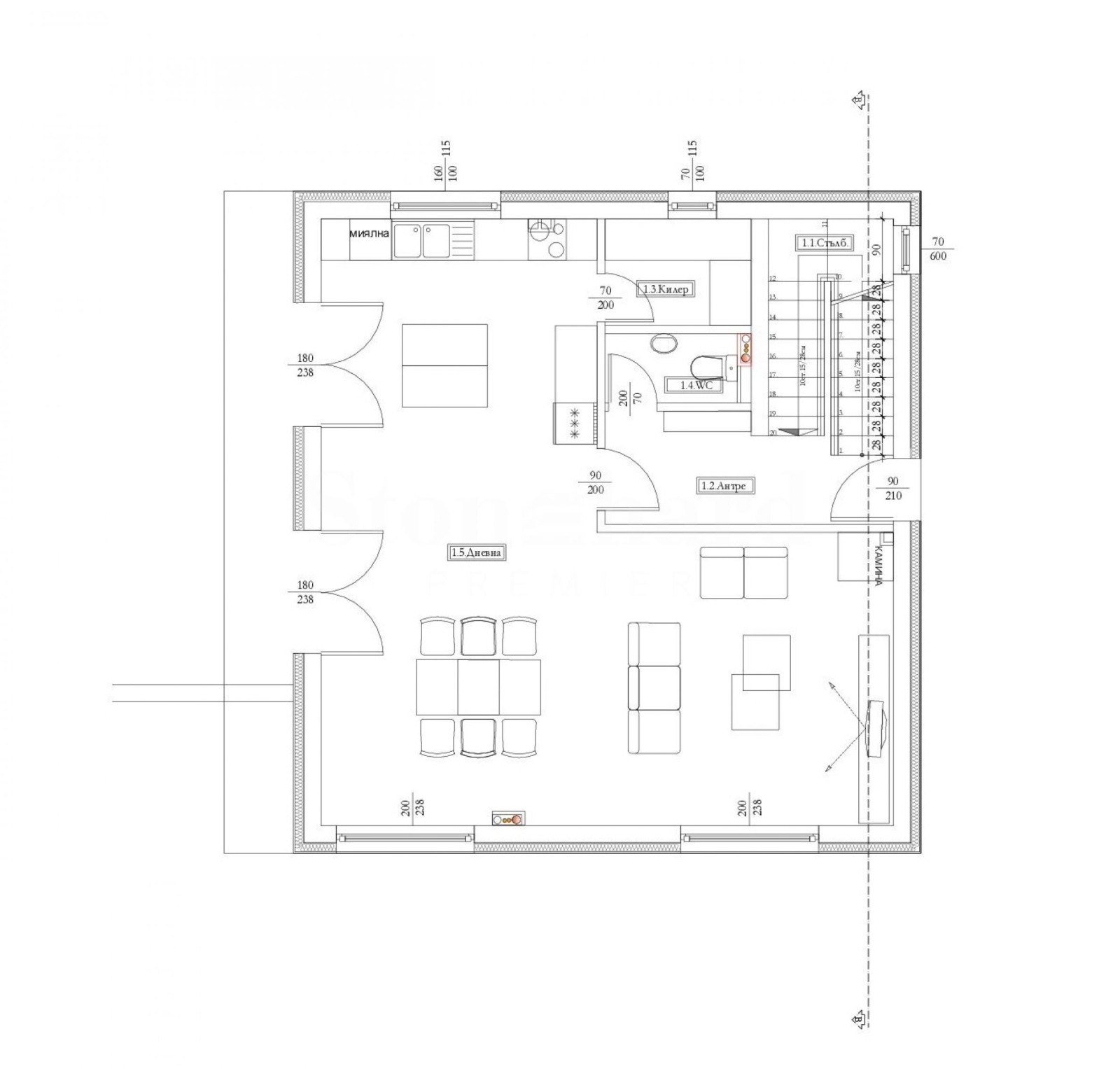
Ниво етаж 1 (кота 0) 87 кв. м:
- Дневна с кухненски бокс 52,73 кв. м;
- Килер 3,25 кв. м;
- Тоалетна 2,11 кв. м;
- Входно антре 5,84 кв. м;
- Стълбище 5,89 кв. м.

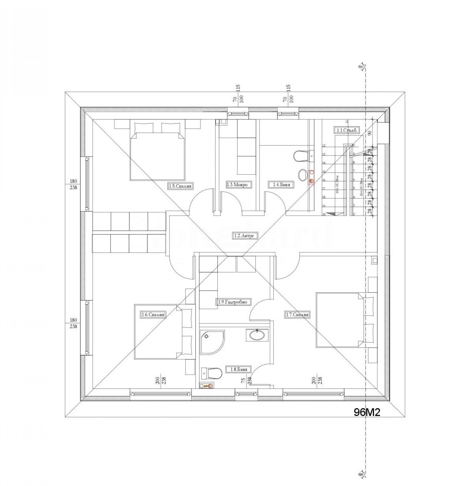
Ниво етаж 2 (кота 3,00):
- Спалня 1 13,55 кв. м;
- Спалня 2 16,32 кв. м;
- Родителска спалня (14,38 кв. м) с дрешник (4,96 кв. м) и баня с тоалетна (4,34 кв. м);
- Баня с тоалетна 3,57 кв. м;
- Мокро помещение 3,57 кв. м;
- Коридор 8,11 кв. м;
- Стълбище 5,89 кв. м.

Технически характеристики:
тухли Wiеnerberger Porotherm 25 см;
тухли вътрешни преградни стени Wiеnerberger Porotherm 12 см;
изолация по фасада 15 см;
фасадна мазилка Baumit;
два броя автоматични гаражни врати Hörmann;
входна врата от висок клас;
дограма: 5 камерна ПВЦ, троен стъклопакет, 4К сезона външно висок клас;
мълниезащита;
изградени Електро и ВиК инсталации;
отопление на ток с подготовка за поставяне на термопомпа;
индивидуална пречиствателна станция и подготовка за присъединяване към канализация на централната ВиК мрежа;
керемиди и покривни материали Брамак;
озеленяване и затревяване на двора.

Етапи на строителство:
Проектът ще бъде изпълнен в две фази, като фаза I, състояща се от къщи 1 и 2 е вече с акт 14 и ...

За повече информация свържете се с нас и цитирайте референтния номер на имота. Моля, кажете, че сте видeли обявата в този сайт.
Референтен номер: SOF-135289
Тел: +359 889 007 010
Моб: +359 877 777 888 (WhatsApp, Viber, SMS)
Отговорен брокер:Стоунхард ПРЕМИЪР
Без комисиона от купувача
Особености
Тухла
С гараж
За контакт:
0889007010
Брокер:
Стоунхард ПРЕМИЪР
0889 007 010
Още оферти от брокера: Продава | Дава под наем | Купува | Наема
Агенция:
СТОУНХАРД ПРЕМИЪР СОФИЯ
0889007010
СТОУНХАРД ПРЕМИЪР   СОФИЯ   logo
Медал за прослужено време
В imot.bg от 2008 г.
stonehard.imot.bg
Адрес:
област София, гр. София, бул. 'Черни връх' 51-Г, етаж 7(офис сграда Realtons Place)
ИЗПРАТИ ЗАПИТВАНЕ
ИЗПРАТИ ЗАПИТВАНЕТО

Продава КЪЩА
град София, Сеславци
Обява: 1j176166832433886

345 000 €
674 761.35 лв.
История на цената
(1 917 €, 3 749.33 лв./m2)

Цената е с включено ДДС
ЗАПАЗИ ОБЯВАТА

Местоположение: град София, Сеславци

Допълнителни данни за имотите в района и сравнение с други райони

Покажи

Период

и 5 месеца

* Средните цени са определени чрез медианна стойност