Обяви 0 За нас Контакти
Продава МЕЗОНЕТ
град София, Връбница 2
309 750 €
605 818.34 лв.

(2 245 €, 4 390.84 лв./m2)
Цената е с включено ДДС
История на цената
Коригирана в 15:31 на 20 януари, 2026 год.
Обявата е посетена 2037 пъти.
Площ:
138 m2
Етаж:
1-ви от 9
Газ:
НЕ
ТEЦ:
НЕ
Строителство:
Тухла, Ще бъде въведен в експлоатация 2026 г.

Описание на имота:


Референтен номер: SOF-126641

Представяме четиристаен мезонет за продажба, в ефектна нова сграда с модерна визия и атрактивна концепция за богато озеленено дворно пространство, в сърцето на кв. 'Връбница', в непосредствена близост до метростанция 'Ломско Шосе'.

Тук ще можете да се насладите на спокойствието на квартала, без да се отказвате от лесния достъп до търговски центрове, ресторанти и обществен транспорт. Идеално място за хора, които търсят съчетание от съвременен стил, удобства и близост до всичко необходимо!

В процес на строителство. Има Акт 14. Планиран Акт 16 - 05.2026 г.

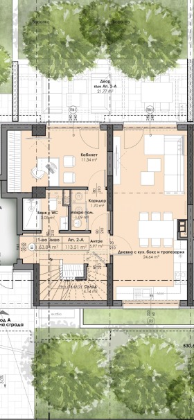
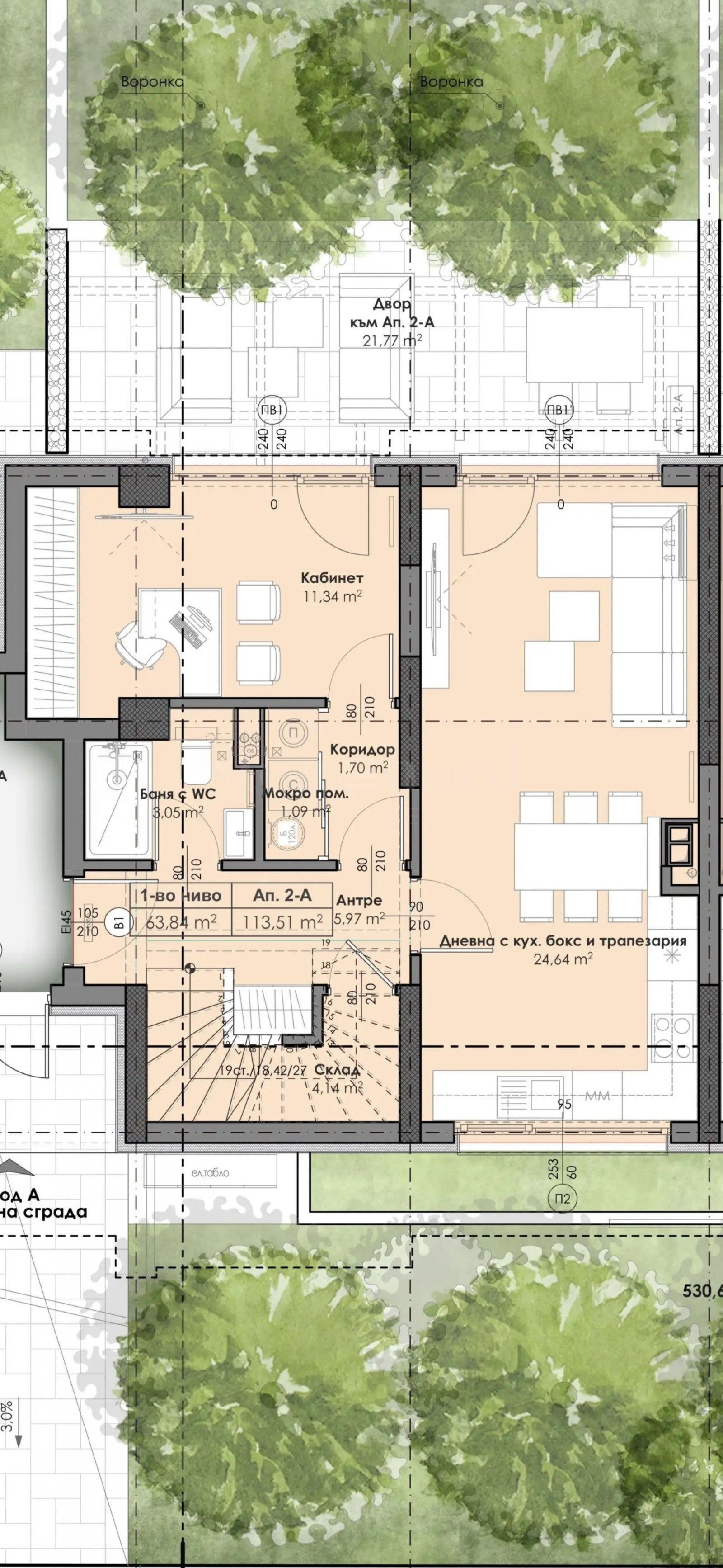
Апартаментът е разположен на 1-ви и 2-ри етаж от 9 и има обща площ 138,12 кв.м. Издава се качествено завършен по БДС (на шпакловка и замазка).

Изложението на жилището е на изток.

Разпределение:
първо ниво: антре/коридор, дневна с трапезария и кухня, мокро помещение, кабинет, склад, баня с тоалет;
второ ниво: коридор, две спални, баня с тоалет.Към жилището има частен двор с площ от 48,02 кв.м.

Концепция на сградата

Зелените площи и високата дървесна растителност са неразделна част от архитектурната концепция. Пространството около сградата ще бъде богато озеленено, с множество засадени липи, чийто аромат ще събуди сетивата и ще остави траен спомен за хармонията между природата и дома Ви.

Близостта до облагородения Северен парк и отсъствието на големи индустриални предприятия в близост осигуряват среда с чист въздух и отлични условия за активен начин на живот и спорт на открито.

Сградата се състои от две подземни нива и 9 надземни етажа. Проектирана е с два отделни входа, като всеки от тях разполага с фоайе, асансьор и стълбищна клетка с директен достъп до сутерена и гаражите. Разполага с различни по площ апартаменти, предлагащи светли стаи, големи прозорци и балкони с прекрасни изгледи. Имотите на първите нива са прекрасни мезонети с просторни частни дворове дворове.

Предвидени ...

За повече информация свържете се с нас и цитирайте референтния номер на имота. Моля, кажете, че сте видeли обявата в този сайт.
Референтен номер: SOF-126641
Тел: +359 889 007 010
Моб: +359 877 777 888 (WhatsApp, Viber, SMS)
Отговорен брокер:Стоунхард ПРЕМИЪР
Без комисиона от купувача
Особености
Тухла
Асансьор
За контакт:
0889007010
Брокер:
Стоунхард ПРЕМИЪР
0889 007 010
Още оферти от брокера: Продава | Дава под наем | Купува | Наема
Агенция:
СТОУНХАРД ПРЕМИЪР СОФИЯ
0889007010
СТОУНХАРД ПРЕМИЪР   СОФИЯ   logo
Медал за прослужено време
В imot.bg от 2008 г.
stonehard.imot.bg
Адрес:
област София, гр. София, бул. 'Черни връх' 51-Г, етаж 7(офис сграда Realtons Place)
ИЗПРАТИ ЗАПИТВАНЕ
ИЗПРАТИ ЗАПИТВАНЕТО

Продава МЕЗОНЕТ
град София, Връбница 2
Обява: 1f176175417637031

309 750 €
605 818.34 лв.
История на цената
(2 245 €, 4 390.84 лв./m2)

Цената е с включено ДДС
ЗАПАЗИ ОБЯВАТА

Местоположение: град София, Връбница 2

Допълнителни данни за имотите в района и сравнение с други райони

Покажи

Период

и 5 месеца

* Средните цени са определени чрез медианна стойност