Обяви 0 За нас Контакти
Продава 4-СТАЕН
град София, Надежда 2
301 488 €
589 659.28 лв.

(2 412 €, 4 717.46 лв./m2)
Цената е с включено ДДС
История на цената
Публикувана в 12:00 на 27 март, 2026 год.
Обявата е посетена 806 пъти.
Площ:
125 m2
Етаж:
4-ти от 6
Газ:
НЕ
ТEЦ:
НЕ
Строителство:
Тухла, Ще бъде въведен в експлоатация 2028 г.

Описание на имота:


Референтен номер: SOF-139034

Представяме просторен четиристаен апартамент за продажба в модерна нова жилищна сграда, на топ локация само на 50 метра от метростанция Надежда , в кв. 'Надежда 2', до бул. 'Ломско шосе'. Локацията осигурява бърз достъп до централните части на София и удобна връзка с основни пътни артерии.

Планиран Акт 16 - лято 2028 г.

Сградата е позиционирана в район с добре изградена инфраструктура, включваща училища, детски градини, търговски обекти и зелени площи. Проектът е бутиков, с ограничен брой жилища, което създава по-спокойна и добре организирана жилищна среда.

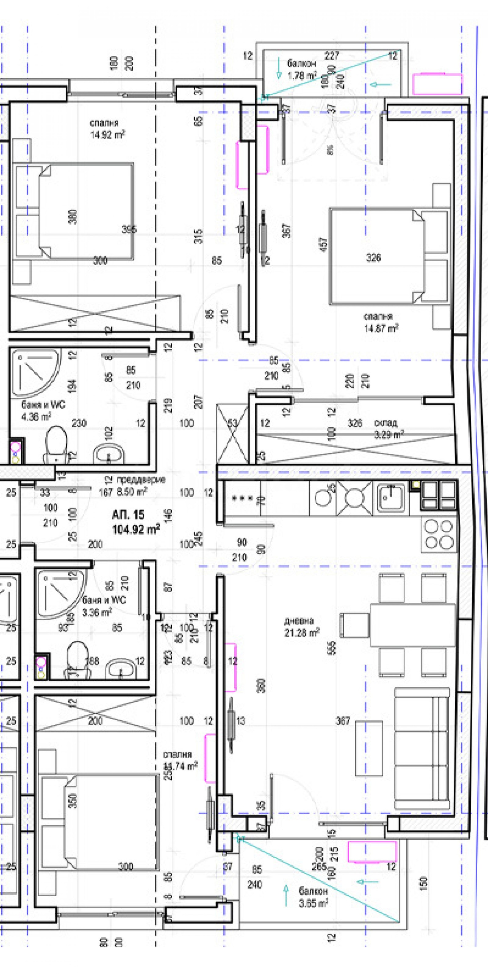
Имотът се намира на 4-ти етаж и има обща площ 125.62 кв.м, чиста площ - 104.92 кв.м.

Разпределение:
антре;
две бани/тоалетни;
три спални;
дневна с кухня;
две тераси.

В сградата:
общо 27 апартамента;
двустайни, тристайни и четиристайни жилища;
12 гаража;
9 паркоместа;
15 складови помещения.

Сградата се изпълнява от утвърден строител с опит, като се използват качествени материали и съвременни строителни технологии.

Технически характеристики:
монолитно строителство;
зидария с тухли Wienerberger
топлоизолация 14 см система Caparol
PVC дограма Weiss Profil
асансьор ThyssenKrupp, 6-местен
светла височина на помещенията 2.80 м

Паркиране:
надземно паркомясто от 28 000 / 54763,24 лв.
надземен гараж от 38 000 / 74321,54 лв.
подземен гараж от 30 000 / 58675 лв.

Схема на плащане:
30% при предварителен договор;
30% при Акт 14;
30% при Акт 15;
10% при разрешение за ползване (Акт 16).

Локация и предимства:
50 м от метростанция Надежда (линия М2);
бърз достъп до центъра на града;
в близост до бул. Ломско шосе ;
район с развита транспортна и търговска инфраструктура;
училища и детски градини в непосредствена близост;
подходящо както за живеене, така и за инвестиция.

За повече информация свържете се с нас и цитирайте референтния номер на имота. Моля, кажете, че сте видeли обявата в този сайт.
Референтен номер: SOF-139034
Тел: +359 889 007 010
Моб: +359 877 777 888 (WhatsApp, Viber, SMS)
Отговорен брокер:Стоунхард ПРЕМИЪР
Особености
Тухла
Асансьор
За контакт:
0889007010
Брокер:
Стоунхард ПРЕМИЪР
0889 007 010
Още оферти от брокера: Продава | Дава под наем | Купува | Наема
Агенция:
СТОУНХАРД ПРЕМИЪР СОФИЯ
0889007010
СТОУНХАРД ПРЕМИЪР   СОФИЯ   logo
Медал за прослужено време
В imot.bg от 2008 г.
stonehard.imot.bg
Адрес:
област София, гр. София, бул. 'Черни връх' 51-Г, етаж 7(офис сграда Realtons Place)
ИЗПРАТИ ЗАПИТВАНЕ
ИЗПРАТИ ЗАПИТВАНЕТО

Продава 4-СТАЕН
град София, Надежда 2
Обява: 1d177460560248548

301 488 €
589 659.28 лв.
История на цената
(2 412 €, 4 717.46 лв./m2)

Цената е с включено ДДС
ЗАПАЗИ ОБЯВАТА

Местоположение: град София, Надежда 2

Допълнителни данни за имотите в района и сравнение с други райони

Покажи

Период

и 5 месеца

* Средните цени са определени чрез медианна стойност