Обяви 0 За нас Контакти
Продава 3-СТАЕН
град София, Младост 4
240 734 €
470 834.78 лв.

(2 360 €, 4 615.76 лв./m2)
Цената е с включено ДДС
История на цената
Коригирана в 15:39 на 21 януари, 2026 год.
Обявата е посетена 2390 пъти.
Площ:
102 m2
Етаж:
1-ви от 10
Газ:
ДА
ТEЦ:
НЕ
Строителство:
Тухла, Ще бъде въведен в експлоатация 2026 г.

Описание на имота:


Референтен номер: AP 131185

Представяме апартамент в комплекс ново строителство в бързо развиващия се квартал Младост 4 . Комплексът е с удобно местоположение, близо до Бизнес Парк София, метростанция 'Бизнес парк', МВР академия, Икея и София Ринг Мол. От комплекса има бърз и лесен достъп до бул. Александър Малинов и Околовръстен път.

В района има всички удобства като магазини и супермаркети, училища и детски градини, спирки на градски транспорт, удобства за спорт и отдих.

Сградата е 10-етажна и се състои от три входа А, Б и В.
Има възможност за закупуване на паркоместа и гаражи.

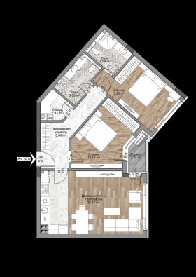
Апартаментът е тристаен, с обща площ 102.44 кв.м. (нетна площ 87.88 кв.м. + общи части 14.56 кв.м.) и е разположен на първи етаж.

Разпределение:

коридор;
дневна с кухня и трапезария;
килер;
две спални;
две бани с тоалетни;
тераса.

Жилището се предлага за продажба качествено завършено по БДС, на шпакловка и замазка.

Технически характеристики:
Висок клас на строителството с най-модерни технологии и материали при изграждането, тухли Винербергер, петкамерна дограма, асансьори висок клас. Общите части са изпълнени луксозно, а настилката е от естествен камък гранит. Отоплението е на газ.

Етап на завършеност:

ВиК инсталации /изпълнени на ниво тапа/;
Електроинсталации, звънчево-домофона инсталация, ТВ инсталация, мълниезащитна инсталация всичките в напълно завършен вид;
Отоплителна инсталация - на газ;
Вентилационна инсталация;
Гладка вътрешна мазилка с шпакловка;
Бани и санитарни възли на мазилка и замазка;
Вътрешна стандартна дограма;
Външна ПВЦ- дограма със стъклопакет;
Блиндирани входни врати;
Общи части в напълно завършен вид.

Схема на плащане:

Предварителен договор 40%
Акт 14 30%
Акт 16 30%

Очакваме Вашето запитване

Ако желаете да организирате оглед на имот, който Ви интересува, или да посетите някой от нашите офиси, моля свържете се с нас. За ...

За повече информация свържете се с нас и цитирайте референтния номер на имота. Моля, кажете, че сте видeли обявата в този сайт.
Референтен номер: AP 131185
Тел: +359 889 007 010
Моб: +359 877 777 888 (WhatsApp, Viber, SMS)
Отговорен брокер:Стоунхард ПРЕМИЪР
Без комисиона от купувача
Особености
Тухла
Асансьор
С гараж
С паркинг
Интернет връзка
За контакт:
0889007010
Брокер:
Стоунхард ПРЕМИЪР
0889 007 010
Още оферти от брокера: Продава | Дава под наем | Купува | Наема
Агенция:
СТОУНХАРД ПРЕМИЪР СОФИЯ
0889007010
СТОУНХАРД ПРЕМИЪР   СОФИЯ   logo
Медал за прослужено време
В imot.bg от 2008 г.
stonehard.imot.bg
Адрес:
област София, гр. София, бул. 'Черни връх' 51-Г, етаж 7(офис сграда Realtons Place)
ИЗПРАТИ ЗАПИТВАНЕ
ИЗПРАТИ ЗАПИТВАНЕТО

Продава 3-СТАЕН
град София, Младост 4
Обява: 1c176175386535817

240 734 €
470 834.78 лв.
История на цената
(2 360 €, 4 615.76 лв./m2)

Цената е с включено ДДС
ЗАПАЗИ ОБЯВАТА

Местоположение: град София, Младост 4

Допълнителни данни за имотите в района и сравнение с други райони

Покажи

Период

и 5 месеца

* Средните цени са определени чрез медианна стойност