Обяви 0 За нас Контакти
Продава 2-СТАЕН
град София, Люлин 9
183 500 €
358 894.81 лв.

(2 039 €, 3 987.94 лв./m2)
Цената е с включено ДДС
История на цената
Публикувана в 18:00 на 16 март, 2026 год.
Обявата е посетена 947 пъти.
Площ:
90 m2
Етаж:
5-ти от 5
Газ:
НЕ
ТEЦ:
НЕ
Строителство:
Тухла, Ще бъде въведен в експлоатация 2028 г.

Описание на имота:


Референтен номер: SOF-138541

Представяме панорамен двустаен апартамент с голяма покривна тераса, за продажба в модерна нова жилищна сграда в кв. 'Люлин 9' район с бърз достъп до ключови булеварди, метростанция и търговски зони. Локацията в близост до бул. 'Сливница' съчетава удобството на градската инфраструктура с близост до паркове и зелени пространства, което я прави подходяща както за лично ползване, така и за инвестиция.

В процес на строителство (пред Акт 14)!

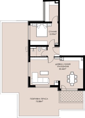
Имотът е разположен на 5-и, последен етаж и има обща площ 90.92 кв.м, чиста площ 78 кв.м, с разпределение: антре, баня/тоалетна, една спалня, дневна с кухня и трапезария, тераса с площ от цели 73.08 кв.м - отлична зона за релакс на открито.
*В съседство с този имот се продава и още един двустаен апартамент, с обща площ 91.30 кв.м, с панорамна тераса, на етажа има само тези 2 имота.

Сградата предлага 23 функционално проектирани жилища, с практични разпределения и изобилие от естествена светлина. Имотите са двустайни и тристайни апартаменти и се предлагат в степен на завършеност по БДС.

В сградата са предвидени 23 паркоместа и гаражи, разположени в подземно ниво, на цени от 23 000 евро (44 984,09 лв.).

Строителство и конструкция:
монолитна стоманобетонна конструкция;
керамични тухли Wienerberger Porotherm 25 Light Plus за фасадни стени;
керамични тухли Porotherm 12 за вътрешни стени.

Фасада и дограма:
фасадна система BAUMIT с 12 см топлоизолация и противопожарни ивици;
метални парапети;
5-камерна дограма в цвят по RAL с двоен стъклопакет.

Инсталации:
ВиК инсталация с полипропиленови и PVC тръби, изпълнена до тапа с монтирани водомери;
електроинсталация с апартаментно табло и защити;
слаботокова инсталация;
ОВК разводка между вътрешни и външни климатични тела.

Общи части и сигурност:
общи части с каменни настилки и метални парапети;
електрически асансьор ORONA със 7 спирки, осигуряващ плавно ...

За повече информация свържете се с нас и цитирайте референтния номер на имота. Моля, кажете, че сте видeли обявата в този сайт.
Референтен номер: SOF-138541
Тел: +359 889 007 010
Моб: +359 877 777 888 (WhatsApp, Viber, SMS)
Отговорен брокер:Стоунхард ПРЕМИЪР
Особености
Тухла
Асансьор
За контакт:
0889007010
Брокер:
Стоунхард ПРЕМИЪР
0889 007 010
Още оферти от брокера: Продава | Дава под наем | Купува | Наема
Агенция:
СТОУНХАРД ПРЕМИЪР СОФИЯ
0889007010
СТОУНХАРД ПРЕМИЪР   СОФИЯ   logo
Медал за прослужено време
В imot.bg от 2008 г.
stonehard.imot.bg
Адрес:
област София, гр. София, бул. 'Черни връх' 51-Г, етаж 7(офис сграда Realtons Place)
ИЗПРАТИ ЗАПИТВАНЕ
ИЗПРАТИ ЗАПИТВАНЕТО

Продава 2-СТАЕН
град София, Люлин 9
Обява: 1b177367682209639

183 500 €
358 894.81 лв.
История на цената
(2 039 €, 3 987.94 лв./m2)

Цената е с включено ДДС
ЗАПАЗИ ОБЯВАТА

Местоположение: град София, Люлин 9

Допълнителни данни за имотите в района и сравнение с други райони

Покажи

Период

и 5 месеца

* Средните цени са определени чрез медианна стойност