Обяви 0 За нас Контакти
Продава 2-СТАЕН
град София, Овча купел 2
115 000 €
224 920.45 лв.

(1 825 €, 3 569.39 лв./m2)
Цената е без ДДС
История на цената
Публикувана в 18:00 на 19 януари, 2026 год.
Обявата е посетена 1502 пъти.
Площ:
63 m2
Етаж:
1-ви от 5
Газ:
НЕ
ТEЦ:
ДА
Строителство:
Тухла, Ще бъде въведен в експлоатация 2028 г.

Описание на имота:


Референтен номер: SOF-137221

Представяме двустаен апартамент в нов жилищен проект, разположен в югозападната част на София, в развиващия се ж.к. 'Овча купел 2', в подножието на Витоша.

Този модерен затворен комплекс предлага високо качество на живот и сигурност. Той се състои от 7 жилищни сгради, изпълнени по съвременни строителни стандарти. Всяка сграда е оборудвана с асансьор, осигуряващ достъп и до подземните нива.

Комплексът се отличава с отлична локация, намирайки се само на 300 метра от метростанция 'Горна Баня', което осигурява бърза и удобна връзка с центъра на града и други райони. В непосредствена близост са разположени търговски обекти като Lidl и Billa, както и болница 'Доверие', което допринася за комфорта на ежедневния живот.

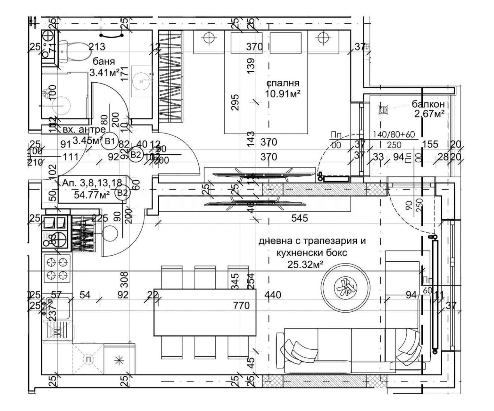
Описание на апартамента
Апартаментът е разположен на 1-ви надпартерен етаж и е с обща площ 62.74 кв.м., от които 7 кв.м. са общи части.

Функционалното разпределение включва:
Дневна с трапезария и кухненски бокс;
Спалня;
Баня с тоалетна;
Коридор;
Тераса.

Характеристики на комплекса
Проектът е фокусиран върху осигуряването на висока степен на шумо- и топлоизолация. При строителството е използвана висококачествена немска 6-камерна PVC дограма с троен стъклопакет. Фасадите са изпълнени с 12 см топлоизолация BAUMIT, гарантираща енергийна ефективност.

Предвидено е топлоснабдяване от централна отоплителна система (ТЕЦ).

Вътрешният двор на комплекса е с площ 10 дка и включва детска площадка за най-малките жители.

Състояние на имота при издаване
Апартаментите се предават в степен на завършеност по БДС на шпакловка и замазка, с монтирани блиндирани входни врати. Има изградена възможност за монтаж на климатик, като са положени необходимите тръбни и електрически ...

Цената на имота е 115 000 евро / 224 920.45 лв. без ДДС или 138 000 евро / 269 904.54 лв. с ДДС. Данъчен кредит може да се ползва при определени условия.

За повече информация свържете се с нас и цитирайте референтния номер на имота. Моля, кажете, че сте видeли обявата в този сайт.
Референтен номер: SOF-137221
Тел: +359 889 007 010
Моб: +359 877 777 888 (WhatsApp, Viber, SMS)
Отговорен брокер:Стоунхард ПРЕМИЪР
Без комисиона от купувача
Особености
Тухла
Асансьор
С паркинг
Контрол на достъпа
За контакт:
0889007010
Брокер:
Стоунхард ПРЕМИЪР
0889 007 010
Още оферти от брокера: Продава | Дава под наем | Купува | Наема
Агенция:
СТОУНХАРД ПРЕМИЪР СОФИЯ
0889007010
СТОУНХАРД ПРЕМИЪР   СОФИЯ   logo
Медал за прослужено време
В imot.bg от 2008 г.
stonehard.imot.bg
Адрес:
област София, гр. София, бул. 'Черни връх' 51-Г, етаж 7(офис сграда Realtons Place)
ИЗПРАТИ ЗАПИТВАНЕ
ИЗПРАТИ ЗАПИТВАНЕТО

Продава 2-СТАЕН
град София, Овча купел 2
Обява: 1b176883842026945

115 000 €
224 920.45 лв.
История на цената
(1 825 €, 3 569.39 лв./m2)

Цената е без ДДС
ЗАПАЗИ ОБЯВАТА

Местоположение: град София, Овча купел 2

Допълнителни данни за имотите в района и сравнение с други райони

Покажи

Период

и 5 месеца

* Средните цени са определени чрез медианна стойност