Обяви 0 За нас Контакти
Продава 2-СТАЕН
град София, Център
295 325 €
577 605.49 лв.

(2 363 €, 4 621.63 лв./m2)
Цената е с включено ДДС
История на цената
Публикувана в 12:00 на 13 ноември, 2025 год.
Обявата е посетена 1680 пъти.
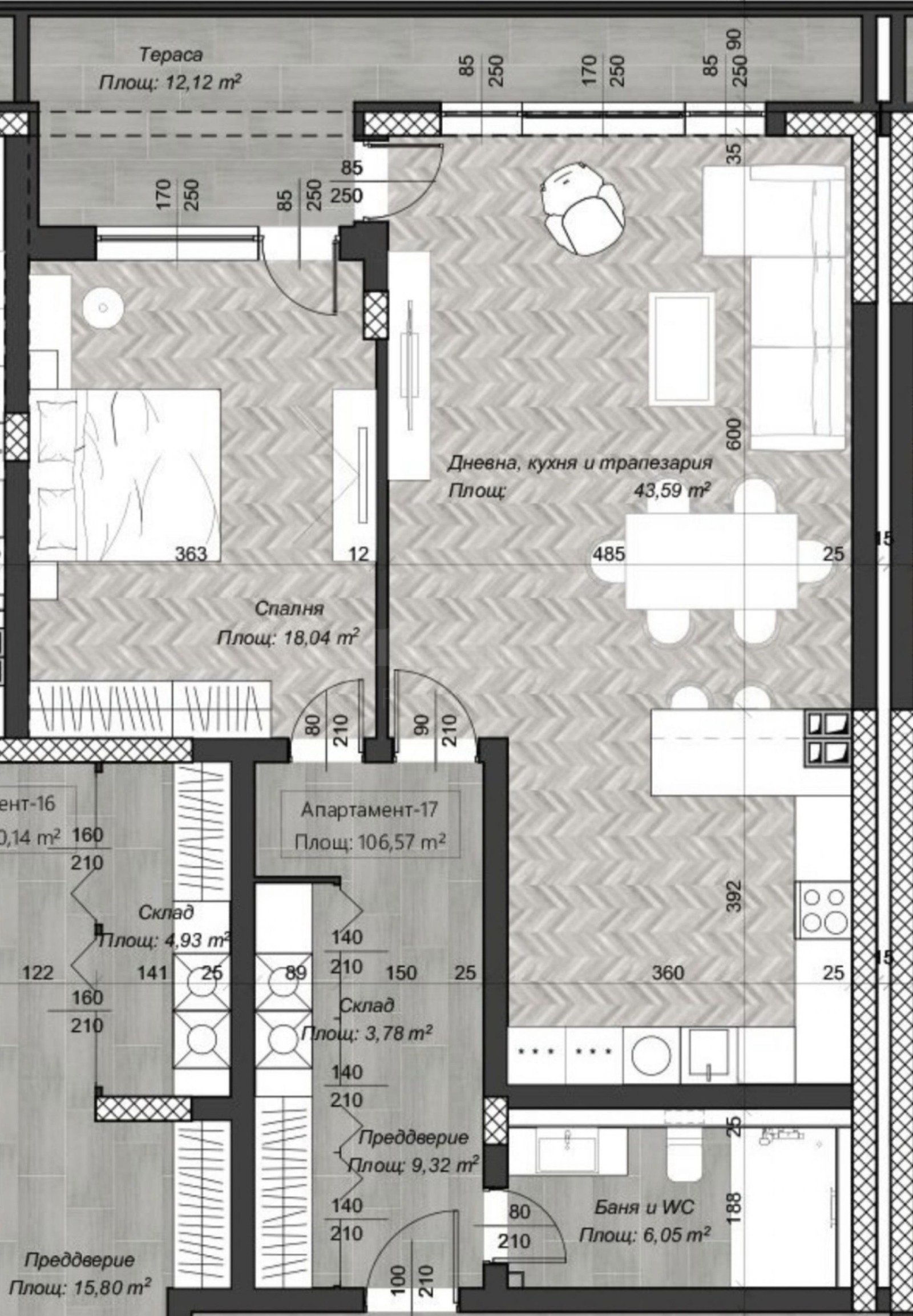
Площ:
125 m2
Етаж:
2-ри от 14
Газ:
НЕ
ТEЦ:
НЕ
Строителство:
Тухла, Ще бъде въведен в експлоатация 2027 г.

Описание на имота:


Референтен номер: SOF-129435

Представяме двустаен апартамент в сграда от висок клас, ново строителство, разположена близо до Sofia Mall, автобусни спирки и метростанция 'Константин Величков'. Наоколо в района има детска градина, църква, паркове, хранителен магазин, ресторанти и други удобства.

Апартаментът е с обща площ 125.67 кв. м (застроена площ 106.57 кв. м и общи части 19.10 кв. м).
Изложение - изток.

Разпределение:
входно антре;
дневна;
баня с тоалетна;
спалня.

Апартаментът се предава в степен на завършеност по БДС, на шпакловка и замазка. Предлага се вариант за довършване 'до ключ'.

За сградата
Фасадата на сградата е с изчистени форми и декоративни елементи, които подчертават обемите. От сградата се откриват живописни гледки към планината и храм паметник 'Св. Александър Невски'. Предвидена е богато озеленена общодостъпна покривна тераса. Луксозно завършване на общите части с кабина за охрана, на партерните етажи са предвидени помещения за магазини.

В сградата се предлагат двустайни, тристайни и четиристайни апартаменти.

На партерен етаж са разположени 18 бр. покрити и 6 бр. открити паркоместа.
Стълбищните ядра са отделени от зоната за автомобили с пожарозащитни врати. Във входните фоайета са отделени общи помещения и помещения за охранител. Предвижда се автоматизирана система за контрол на достъпа. Предвидени са също технически и складови помещения на това ниво.

На жилищните етажи от 3 до 13 са разположени 69 апартамента различни по типология и големина.
На последния 14-и етаж е разположен един многостаен апартамент с частна покривна тераса, от който се откриват панорамни гледки към града.

Технически характеристики:
Монолитна стоманобетонова конструкция;
Фасадното остъкляване осигурява максимално естествено осветление във всяко жилищно помещение;
Немски алуминиеви профил с троен стъклопакет Schüco;
Зидария от ...

За повече информация свържете се с нас и цитирайте референтния номер на имота. Моля, кажете, че сте видeли обявата в този сайт.
Референтен номер: SOF-129435
Тел: +359 889 007 010
Моб: +359 877 777 888 (WhatsApp, Viber, SMS)
Отговорен брокер:Стоунхард ПРЕМИЪР
Без комисиона от купувача
Особености
Тухла
Асансьор
С паркинг
За контакт:
0889007010
Брокер:
Стоунхард ПРЕМИЪР
0889 007 010
Още оферти от брокера: Продава | Дава под наем | Купува | Наема
Агенция:
СТОУНХАРД ПРЕМИЪР СОФИЯ
0889007010
СТОУНХАРД ПРЕМИЪР   СОФИЯ   logo
Медал за прослужено време
В imot.bg от 2008 г.
stonehard.imot.bg
Адрес:
област София, гр. София, бул. 'Черни връх' 51-Г, етаж 7(офис сграда Realtons Place)
ИЗПРАТИ ЗАПИТВАНЕ
ИЗПРАТИ ЗАПИТВАНЕТО

Продава 2-СТАЕН
град София, Център
Обява: 1b176302803257980

295 325 €
577 605.49 лв.
История на цената
(2 363 €, 4 621.63 лв./m2)

Цената е с включено ДДС
ЗАПАЗИ ОБЯВАТА

Местоположение: град София, Център

Допълнителни данни за имотите в района и сравнение с други райони

Покажи

Период

и 5 месеца

* Средните цени са определени чрез медианна стойност